An innovative low-carbon retrofit of a late Victorian villa, designed to meet LETI’s Best Practice for Retrofit.

Energy-saving measures include significantly improved air-tightness, wood fibre insulation, mechanical ventilation with heat recovery, and all new services. Using a palette of natural, breathable materials inspired by the original construction, such as clay and timber, the design is both a sympathetic addition to and an imaginative reinvention of a typical Victorian villa. Material choices have also been chosen for their benefits to health and wellbeing, such as their acoustic qualities, non-toxic properties, and ability to moderate temperature and humidity.

096 250205 001 External Extension SN
250502 096 Dartmouth Road 01 Site Plan
250521 096 Dartmouth Road 05 Sectional Perspective 01

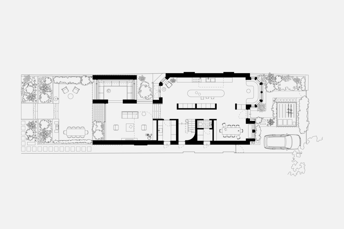
While the exterior of the house has been sensitively and carefully renovated, the interiors have been completely re-designed. Having lost all original features internally during multiple refurbishments throughout the 20th century, there was significant potential to re-think the dark, divided, and awkwardly arranged interiors.

096 240423 001 Living Room SN
096 240506 003 Kitchen SN
096 240423 002 Dining Room SN

Spatially we’ve disrupted the segregated spaces to reflect contemporary family life, specifically the needs of a busy family with 5 children. The ground floor is open plan, with changes in floor level, varying volumes, and furniture loosely defining different and flexible functions. A new extension with sunken seating provides a generous living space with framed views of the large rear garden. The three principal floors are connected vertically, using dramatic two and three-storey voids, that introduce light and air deep into the plan. These voids create visual connections and give a unique character to the spaces.

250502 096 Dartmouth Road 02 Ground Floor Plan

The project incorporates a separate newly built garden studio which includes a gym, sauna, ice bath, and home office.

096 250205 005 External Studio Portrait AB
Location: London Date: 2023 Type: Private
Back to top