This project was to create flexible holiday accommodation on the edge of the Peak District National Park. A simple and expressed timber structure which is divided into regular bays allows the building to be quickly and simply constructed, as well as allowing for future extension.

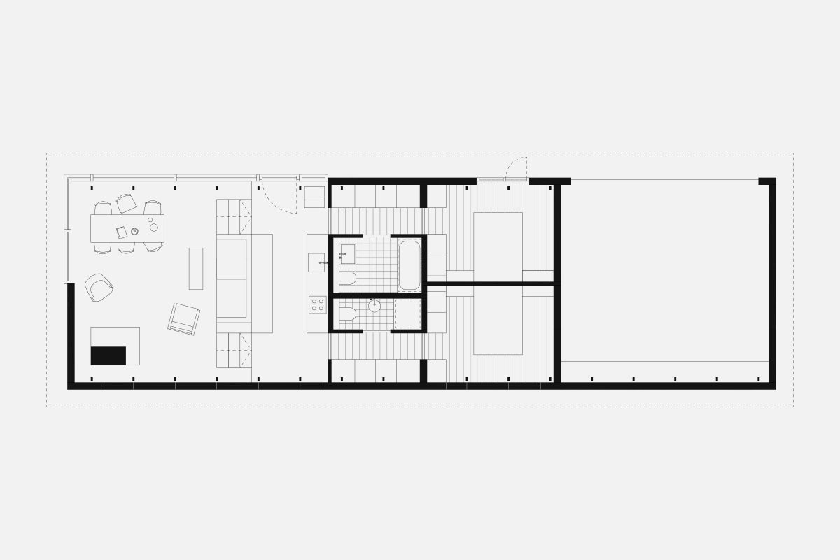
Crich Chase GF Plan
Crich Chase Approach
Crich Chase Site Plan

Externally the timber cladding, corrugated roofing and gutter-less eaves reference agricultural detailing and materials which surround the site. A generous open plan living space with large glass openings frame the landscape, providing a warm interior for visitors to make the most of their stay and absorb their surroundings.

Crich Chase Elevation
Crich Chase Section
Location: Derbyshire Date: 2017 Type: Private
Back to top