Tactility, craftsmanship, and a feeling of warmth inspired the construction of a new kitchen and dining space, rooftop extension, and refurbishment of a Victorian terrace for a young family.

TYPE LZ 2025 23
TYPE LZ 2025 19
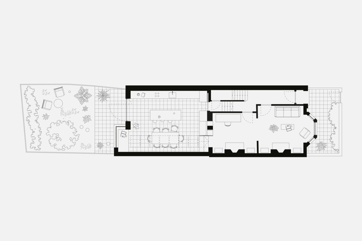
250912 054 Bromar Plan
TYPE LZ 2025 11
250912 055 Bromar Section

Materials include hand moulded bricks in a subtle two-tone layout, clay fired floor tiles, cork, unpainted plaster, and bespoke ash joinery. These simple, affordable, and durable materials—brick, terracotta, and timber—give the project a distinct character while reflecting the historic construction of the original house.

TYPE LZ 2025 4
TYPE LZ 2025 21
TYPE LZ 2025 13
TYPE LZ 2025 6

In the ground floor extension, a frameless corner window, built-in bench seat, and large pivot door create a stronger connection between the house and newly landscaped garden. A large rooflight defines the dining area and allows light deep into the existing floor plan, which is separated by open shelving and a change in floor level.

TYPE LZ 2025 8
TYPE LZ 2025 9
TYPE LZ 2025 22
TYPE LZ 2025 3

The design transforms the previous kitchen which was small, dark, and offered little room for meals or socialising. The garden was also neglected and overgrown, while being cut off from the principle living spaces.

TYPE LZ 2025 20
TYPE LZ 2025 10
250912 056 Bromar Elevation
TYPE LZ 2025 2

Alongside the ground-floor extension and refurbishment, a loft conversion adds a new bedroom, shared bathroom, and home office. We wanted the new second floor to feel spacious, light, and generous; like being on top of the roof, and not restricted underneath it like many loft spaces. With this in mind, the bedroom includes a large vertical panoramic window which frames views of the city and sky. A rooflight above the shower floods the bathroom with light while giving a feeling of being outside, underneath the sky.

TYPE LZ 2025 16
TYPE LZ 2025 18
TYPE LZ 2025 17

The project is part of a wider, on-going series exploring the adaptability of terraced houses, a typology known for its flexible, long-lasting design, built with an economy of means, which can be endlessly reconfigured.

TYPE LZ 2025 14
TYPE LZ 2025 12
TYPE LZ 2025 7
TYPE LZ 2025 1
Location: London Date: 2022 Type: Private
Back to top